For the Design for Dining project, we used our new fabrication space to build our installation in-house. This architect as fabricator delivery model facilitates an accelerated project schedule, controls costs and guarantees adherence to design intent. As pressures of construction and installation are incorporated into the design process, the digital design model becomes a virtual “shop drawing.” This synthesis allows the team to strategize construction methodology, material procurement and installation procedure simultaneously with design development.

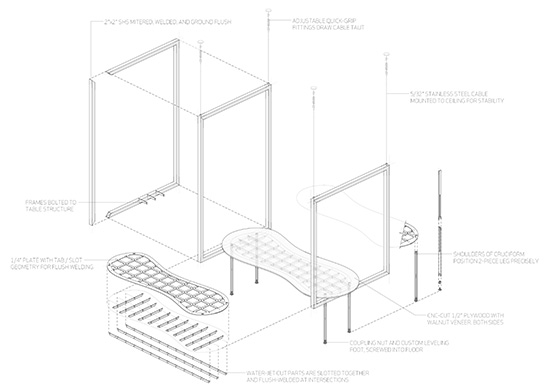
Steel components are waterjet-cut from ¼” HRPO plate. We leverage the accuracy of this process in an assembly of tightly interlocking parts.

Designing for constructability in the 3D design model streamlined the fabrication process. Slotted parts fit together cleanly, eliminating measurement errors and misalignments that might occur in a more conventional assembly process.

Once in place, the pieces are clamped tight and puddle-welded in the ‘wells’ at each intersection. Incorporating fabrication logic into the design process helps to generate ‘pre-solutions’ like these small notches for the weld material.

The tabs in the support grid fit into the slots in the surface plate. The tabs only extend part way into the slots, leaving enough space for the weld-material to provide a strong puddle-weld connection.


All welds are ground flush, leaving the impression of a seamless, monolithic casting.

Off-the-shelf coupling nuts drop into a receptacle at the base of the legs. The coupling nuts serve as housings for the threaded leveling feet.

The ‘shoulders’ at the top of each cruciform leg position the part at the requisite depth within the surface plate.

Thoughtful geometry and assembly logic produce a slender structural frame.

To ensure accurate fit-up, the bottom members of the picture frames are bolted and clamped into place while the bolt plates are tack-welded to the square tube.

Once the bolt-plates are accurately tacked in place, the assembly is taken off the table base and fully welded.

The steel table base in painted with matte black enamel. The table top, a ½” MDF core with walnut veneer, is CNC-cut to its specialized profile and edge-veneered by hand before it is finished with a satin spar urethane.

The finished product is mechanically fastened to the floor and ceiling of the restaurant.
The close alignment of design concepts and fabrication protocols makes for a smooth production sequence.
To experience the table firsthand, visit The Merchant.
